
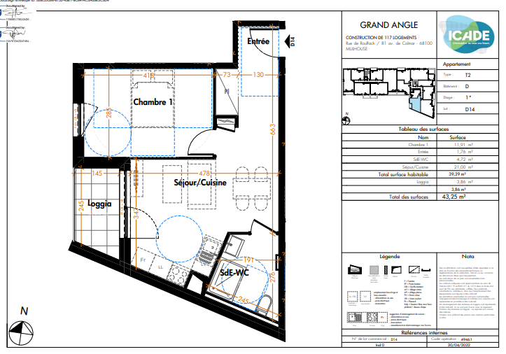
Mulhouse (68200) MULHOUSE - T2 39,39 m²
608 €
CC*
Réf : 71638